SALDA SMARTY 3X V 1.3 vertikalus priešpriešinių srautų plokštelinis rekuperatorius
-
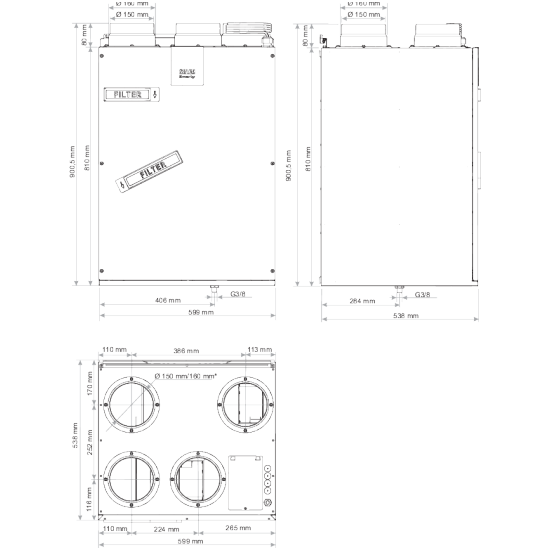
Kodas: SMARTY 3X V 1.3
PASTABA: atliekami montavimo darbai visoje Lietuvoje - teirautis įmonės kontaktais.
TipasVertikalus rekuperatorius
KodasSMARTY 3X V 1.3
Šilumokaičio tipasPriešpriešinių srautų plokštelinis
MontavimasVertikalus
ŠildytuvasNėra komplekte
Naudingumo koeficientas, %82
Oro srautas, m³/h350
CO2 daviklisNėra komplekte
Valdymo pultasNėra komplekte
Matmenys, mm900x599x538
Ortakio diametras, mm160 (4x)
Maitinimas, V/Hz1~230
GamintojasSalda, Lietuva
-
PASTABA: atliekami montavimo darbai visoje Lietuvoje - teirautis įmonės kontaktais.
Smarty serijos įrenginiai skirti montavimui gyvenamosios paskirties pastatuose. Smarty X P modeliai išsiskiria itin aukštais - iki 94 % efektyvumo rodikliais ir geriausiais - 1 % sandarumo parametrais. Įrenginys testuotas ir sertifikuotas nepriklausomoje ES laboratorijoje.
•Pagamintas iš dvisluoksnio cinkuoto plieno ir EPP
•Pažangus korpuso izoliacijos sprendimas – EPP (λ 0,02 W/(K*m))
•Aukščiausia įmanoma vidinio ir išorinio sandarumo klasė A1/A1 (EN 13141-7)
• Žemas triukšmo lygis LwA - nuo 45 dB (EN 13141+7)
•Išorinės korpuso sienelės dažytos baltai (RAL 9016) milteliniu būdu; Korozijos klasė – C3
•Higieniška kondensato nubėgimo vonelė. Sukurtas vadovaujantis VDI 6022-1 higienos reikalavimais
•Didelė filtruojamo oro zona – ilgas tarnavimo laikotarpis (~ 6 mėnesiai)
•Greitas ir lengvas filtrų pakeitimas. Filtrų tipas atitinka EN 779:2013 direktyvos reikalavimus
•Naujos kartos EC ventiliatoriai – EBM-papst radical
•Specifinė įrenginio galia SPI (efektyvumas) – 0,29W m³/h•Minimalus energijos suvartojimas (SFP) <0,8
•Eksploatacijos periodas – 10 metų (40 000 darbo valandų)
•Ventiliatoriai papildomai apsaugoti dangteliais
•Efektyvumas 94 % (DIBt)
•Efektyvumas 94 % (70% 50 Pa EN 13141-7; +2°C)
•Efektyvumas 85 % (Passive house)
•100% apėjimo sklendė (naktinis vėsinimas)
•Apėjimo sklendės valdymo jutiklis tolygiam įrenginio darbui užtikrinti
•Integruotas slėgio keitiklis subalansuoto ir pastovaus oro srauto palaikymui
•Energijos tiekimas budėjimo režime - nuo 1W.
•Pašildytuvo valdymas 0-10V (0-100%) iki 1kW (pagal DIBt)
•Plastikiniai flanšai – apsauga nuo šalčio tiltų susidarymo




